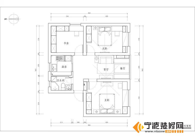
小三房80方全套15万轻松搞定16P

2014-03-23 宁波装修网

三房80方全套15万轻松搞定

查看更多资讯

预约设计与报价

  • 平米

恭喜您,申请成功!

宁波装修网客服稍后将与您电话联系,审核信息真实性,以便更好的为您提供服务。

关注宁波装修网微信:nbzxwcn,登录会员中心可管理查看您申请的信息及进展情况。

对不起,申请失败,请不要重复提交!

您可以通过关注宁波装修网微信:nbzxwcn,登录会员中心可管理查看您申请的信息及进展情况。

服务区域:
赞助商广告
好师傅速达

装修、安装、维修、家政专业好师傅
找好师傅,好师傅速达