现代简约装修案例详细解析
2015-03-04
宁波装修网
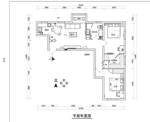
【业主要求】要求空间利用的充分,设计感要强,主卧给老人居住,夫妻俩住次卧。 【设计说明】 布局:格局上,三居改为两居,扩大次卧面积,并将缩小后的书房改为衣帽间。开敞式厨房,使格局更通透。扩大卫生间空间,使之功能更齐全,布局更合理。人性化的细节处理,个性化的吧台餐桌等等。 风格:整体风格定义为现代简约。空间线条流畅自然,简约而不简单;色彩明快自然, 温馨而不俗套。




【业主要求】要求空间利用的充分,设计感要强,主卧给老人居住,夫妻俩住次卧。 【设计说明】 布局:格局上,三居改为两居,扩大次卧面积,并将缩小后的书房改为衣帽间。开敞式厨房,使格局更通透。扩大卫生间空间,使之功能更齐全,布局更合理。人性化的细节处理,个性化的吧台餐桌等等。 风格:整体风格定义为现代简约。空间线条流畅自然,简约而不简单;色彩明快自然, 温馨而不俗套。





恭喜您,申请成功!
宁波装修网客服稍后将与您电话联系,审核信息真实性,以便更好的为您提供服务。
关注宁波装修网微信:nbzxwcn,登录会员中心可管理查看您申请的信息及进展情况。
对不起,申请失败,请不要重复提交!
您可以通过关注宁波装修网微信:nbzxwcn,登录会员中心可管理查看您申请的信息及进展情况。