浪漫现代美式 120平三居中海国际御城
清晨拉开窗帘,清甜的梦在脑海回甘,梦里有你温暖的大手,醒来握着你温润的手心,想必和你在一起,有一个家,是我最轻松惬意的归处。即使家不那么大,但想到归期有你的等待,我便加紧步伐欣喜前往。
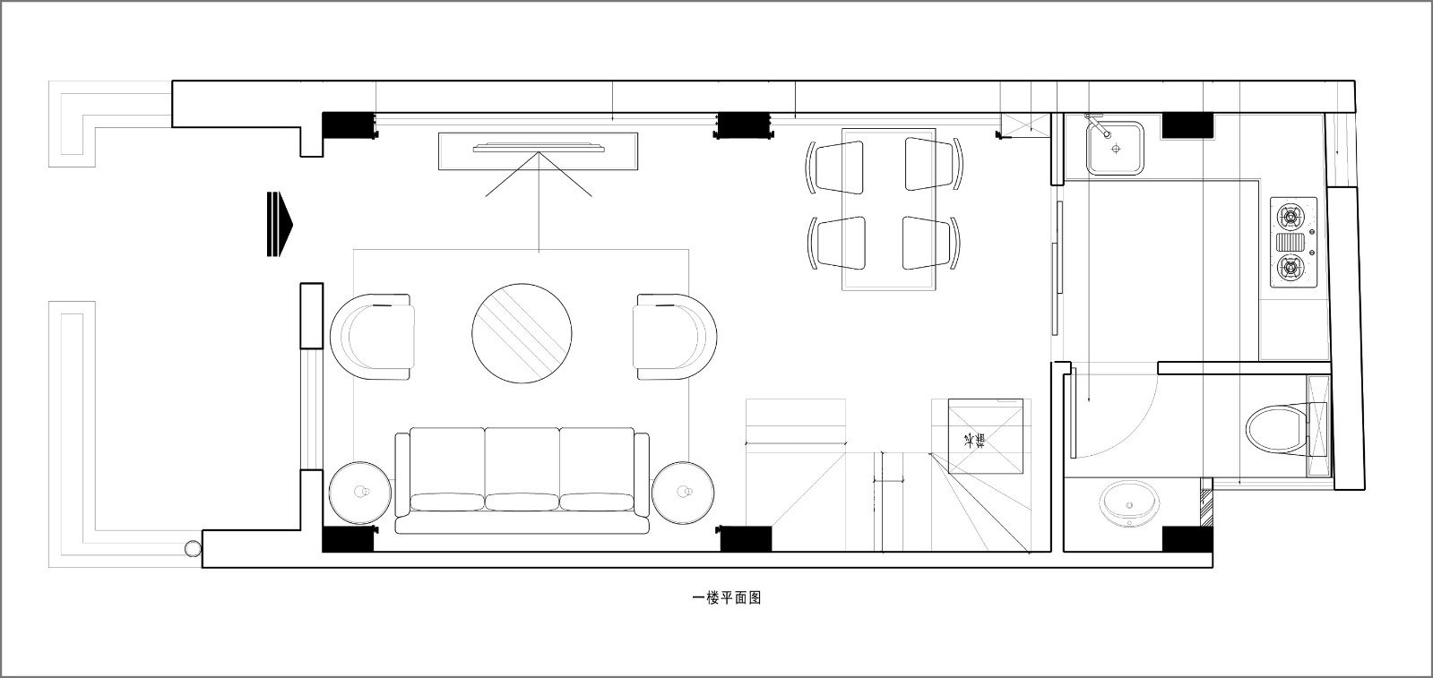
别墅一层是生活动区,客厅,餐厅和厨房都分布于一楼,20平米的客厅简约舒适,浅灰色沙发搭配大理石花纹地板,低饱和的颜色让客厅变成变得温润舒缓,把生活过成诗,家是诗篇的起承转合,美好的愿景都在家呈现。
餐厅和厨房延续了客厅的整体色调,以灰白为基调,精致的餐桌提升着生活的格调。厨房的白色橱柜有了金框的加持,把空间推向精致的奢华,灰色大理石花纹宛如平静浪涛下的暗涌,演绎了大气沉稳的空间感。
通向二楼的楼梯以原木为色调,暖和的色调给空间带来一丝柔和,楼梯阁楼下的空间设计师充分利用起来,设计了一个收纳柜,满足了业主收纳的需求。
二楼和三楼是生活静区,风格以简约清新为主.以定制内嵌衣柜为主要设计方案,这种设计节省了空间占有率; 白色的定制家具提升了卧室的轻奢格调,如同轻缓的音符流动于空间,时尚优雅。
三楼两侧分别为主卧和次卧,约8平米的主卧拥有一面落地窗户,灰色和橘色的窗帘布艺搭配,原本素净的空间瞬间明媚了起来。清晨的阳光洒落在地上,温暖而又平静,世间的熙熙攘攘,因为有你的陪伴变得不再喧哗。
次卧延续了白色轻奢的风格,白色柔美的色调和铁艺利落的线条的搭配,让空间有一种柔和刚强的融合之美。

